【新築一棟販売事例】
JR山手線「目黒」駅より徒歩6分の「サウンドプルーフ目黒」は、グランドピアノ・ギター・サックス等の木管楽器など、自宅で24時間楽器演奏が可能な、全戸二重防音構造の防音賃貸マンションです。
- TOP
- DEVELOPMENT PROPERTY
- サウンドプルーフ 目黒
2017年3月 竣工
サウンドプルーフ 目黒
東京都 目黒区 下目黒
物件情報
PROPERTY INFORMATION
- 所在地
- 東京都目黒区下目黒2丁目5番5号
- 用途地域
- 準工業地域
- 敷地面積
- 219.94m²
- 建ぺい率
- 70%
- 容積率
- 253.80%
- 延床面積
- 660.10m²
- 築年月
- 2017年3月22日
- 構造・階数
- 鉄筋コンクリート造・5階建
- 間取り
- 賃貸住宅17戸 (1Kタイプ25.58㎡~26.56㎡×17戸)
- 防音構造
- 全戸二重防音構造
- 防音性能目標値
- 80dB(500Hz)
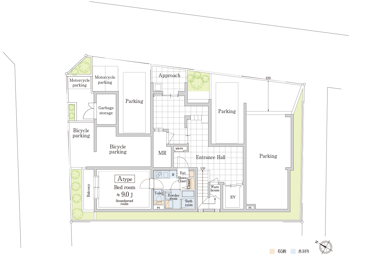
平面図
GROUND PLAN
アクセス
ACCESS
JR山手線 「目黒」駅より徒歩6分
東急目黒線 「不動前」駅より徒歩9分
物件情報
PROPERTY INFORMATION
- 所在地
- 東京都目黒区下目黒2丁目5番5号
- 用途地域
- 準工業地域
- 敷地面積
- 219.94m²
- 建ぺい率
- 70%
- 容積率
- 253.80%
- 延床面積
- 660.10m²
- 築年月
- 2017年3月22日
- 構造・階数
- 鉄筋コンクリート造・5階建
- 間取り
- 賃貸住宅17戸 (1Kタイプ25.58㎡~26.56㎡×17戸)
- 防音構造
- 全戸二重防音構造
- 防音性能目標値
- 80dB(500Hz)
その他の物件
OTHER PROPERTIES
販売中物件はこちら