【新築一棟販売事例】
複数のターミナル駅「東京駅」や「品川駅」へ特にアクセスがしやすい「大森駅」。
京急本線の「立会川駅」は羽田空港へのアクセスが良く、出張の多い方にも便利な街です。
利便性が高いだけでなく、四季折々の自然が楽しめることで有名な街。
「大森ふるさとの浜辺公園」、「しながわ区民公園」でのんびりとした時間を過ごした後、ショッピングやグルメを楽しむなら「アトレ大森」へ。
「アトレ大森」は大森駅直結で多彩なショップやレストランが集まり、日常の買い物から特別なショッピングまで楽しむことができます。東急ストアや成城石井といったスーパーが充実しています。最新のトレンドアイテムや美味しいグルメを求める方々に、絶好のスポットとしておすすめです。
※CGの家具等はあくまで参考であり実際にはございません
- TOP
- DEVELOPMENT PROPERTY
- サウンドプルーフ プロ大森
2024年1月 竣工
サウンドプルーフ プロ大森
東京都 品川区 南大井
物件情報
PROPERTY INFORMATION
- 所在地
- 東京都品川区南大井5丁目
- 用途地域
- 準工業地域
- 敷地面積
- 187.16㎡
- 建ぺい率
- 60%
- 容積率
- 300%
- 延床面積
- 476.74㎡
- 築年月
- 2024年1月
- 構造・階数
- 鉄筋コンクリート造・5階建
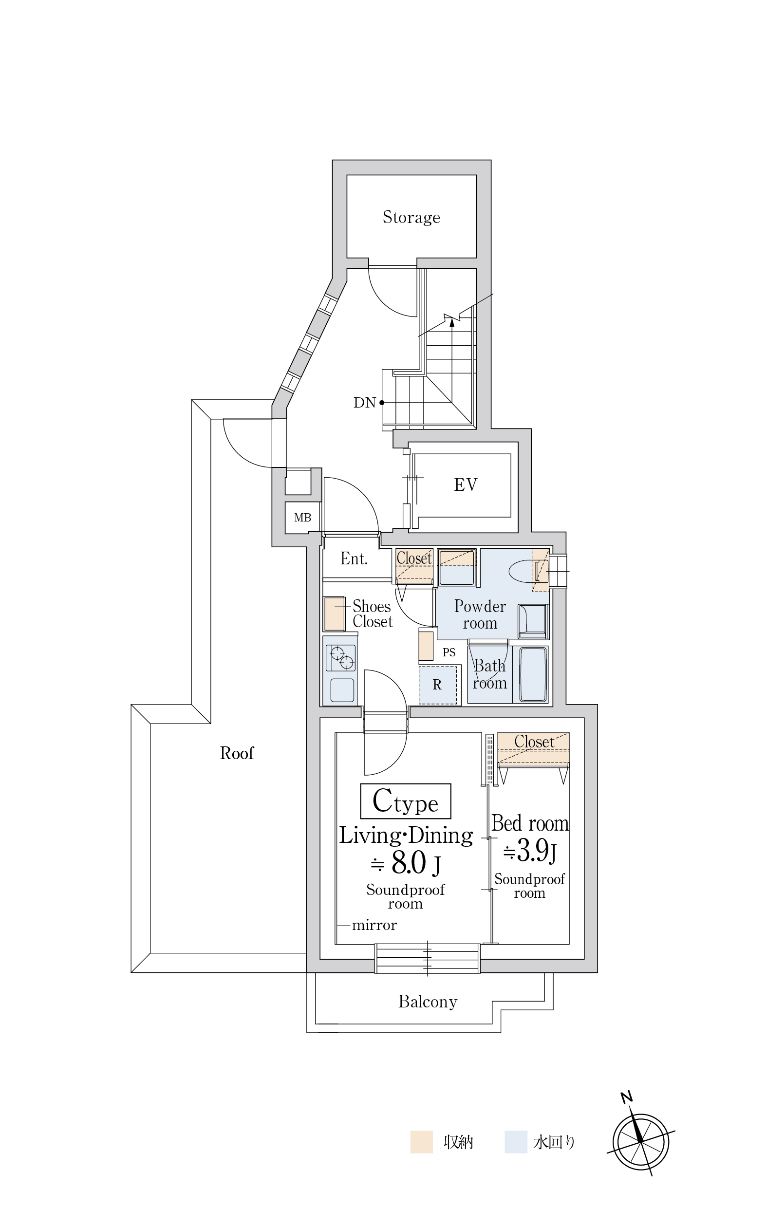
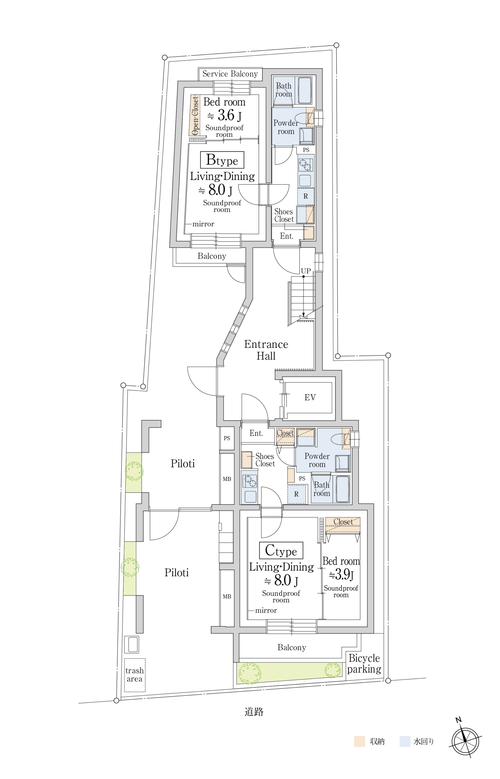
- 間取り
- 1Kタイプ(25.3㎡)×2戸、1LDKタイプ(30~53.29㎡)×8戸
- 防音構造
- 全戸三重防音構造
- 防音性能目標値
- 100dB(500Hz)
平面図
GROUND PLAN
アクセス
ACCESS
JR京浜東北線 大森駅より徒歩9分
京急本線 立会川駅より徒歩12分
物件情報
PROPERTY INFORMATION
- 所在地
- 東京都品川区南大井5丁目
- 用途地域
- 準工業地域
- 敷地面積
- 187.16㎡
- 建ぺい率
- 60%
- 容積率
- 300%
- 延床面積
- 476.74㎡
- 築年月
- 2024年1月
- 構造・階数
- 鉄筋コンクリート造・5階建
- 間取り
- 1Kタイプ(25.3㎡)×2戸、1LDKタイプ(30~53.29㎡)×8戸
- 防音構造
- 全戸三重防音構造
- 防音性能目標値
- 100dB(500Hz)
その他の物件
OTHER PROPERTIES
販売中物件はこちら