【新築一棟販売事例】
ライブハウスや劇場が多くあり、サブカルチャーが根づいている下北沢。
渋谷駅まで4分、新宿駅まで8分で都心へのアクセスも抜群な若者を中心に人気の街です。
2019年には世界各国で発行されている情報誌「タイムアウト」で、世界で最もクールな50の街、第2位に選ばれました。
さらに、全長1.7㎞にも及ぶ「下北線路街」の再開発エリアも全面開業となり、注目を集めています。
小田急線の駅の真上には、その名の通り商業施設「シモキタエキウエ」があり、スターバックスコーヒーなどの飲食店・雑貨店・ポップストアなどが入っています。
駅周辺には成城石井・オオゼキ・ダイエーといった人気のスーパーがあり、生活がしやすい環境が整っています。
また「下北沢南口商店街」には古着屋、劇場、楽器店などの下北沢ならではのお店が並んでいます。
感性が磨かれるエリアが広がっており、これまでに見られなかった変化を遂げようとしている下北沢はますます人気の街になっていくのではないでしょうか。
※CGの家具等はあくまで参考であり実際にはございません
- TOP
- DEVELOPMENT PROPERTY
- サウンドプルーフ プロ下北沢
2025年2月 竣工
サウンドプルーフ プロ下北沢
東京都 世田谷区 代沢
物件情報
PROPERTY INFORMATION
- 所在地
- 東京都世田谷区代沢3丁目
- 用途地域
- 第一種中高層住居専用地域
- 敷地面積
- 245.10㎡
- 建ぺい率
- 50%
- 容積率
- 150%
- 延床面積
- 414.15㎡
- 築年月
- 2025年2月
- 構造・階数
- 鉄筋コンクリート造・3階建
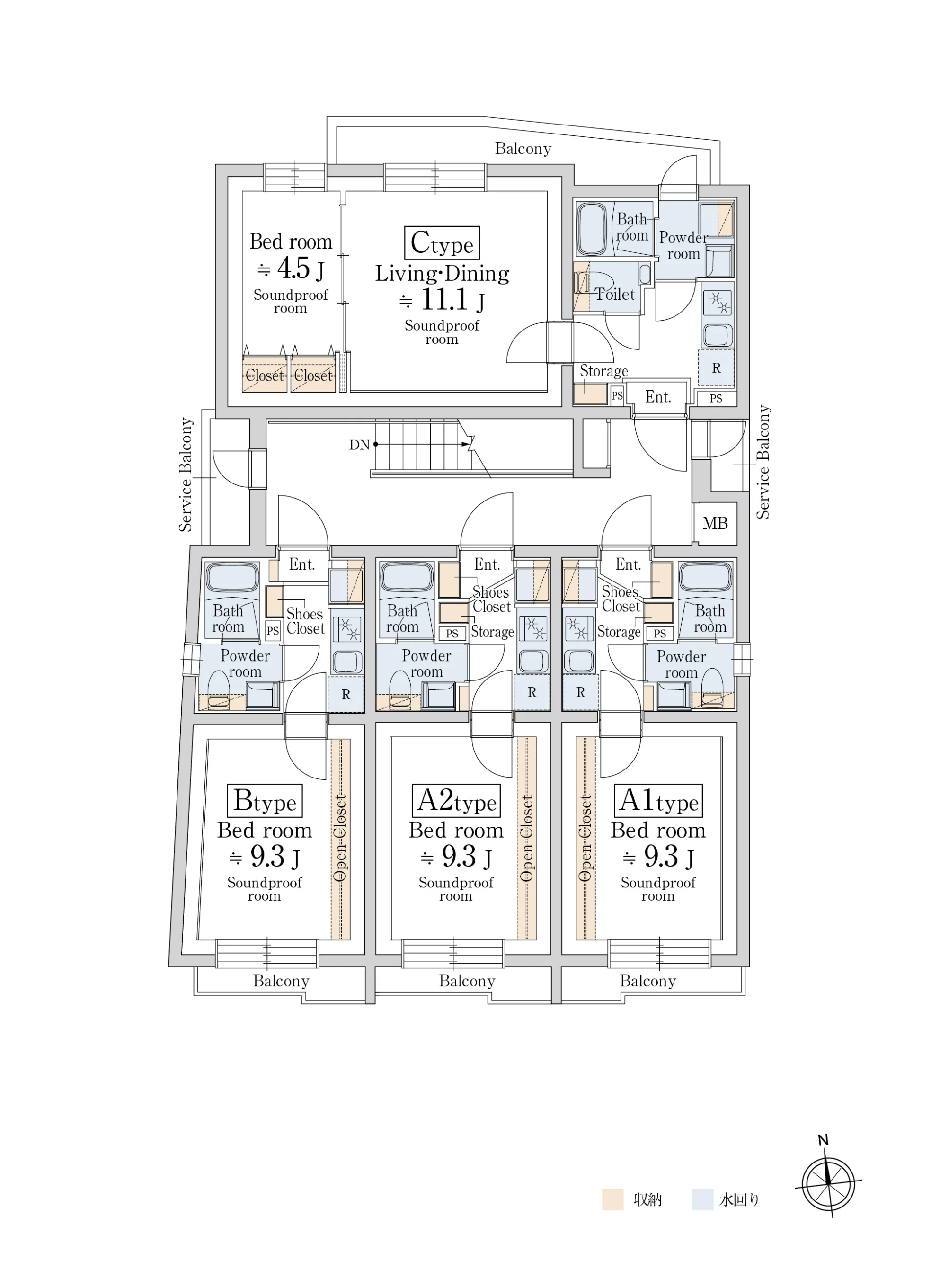
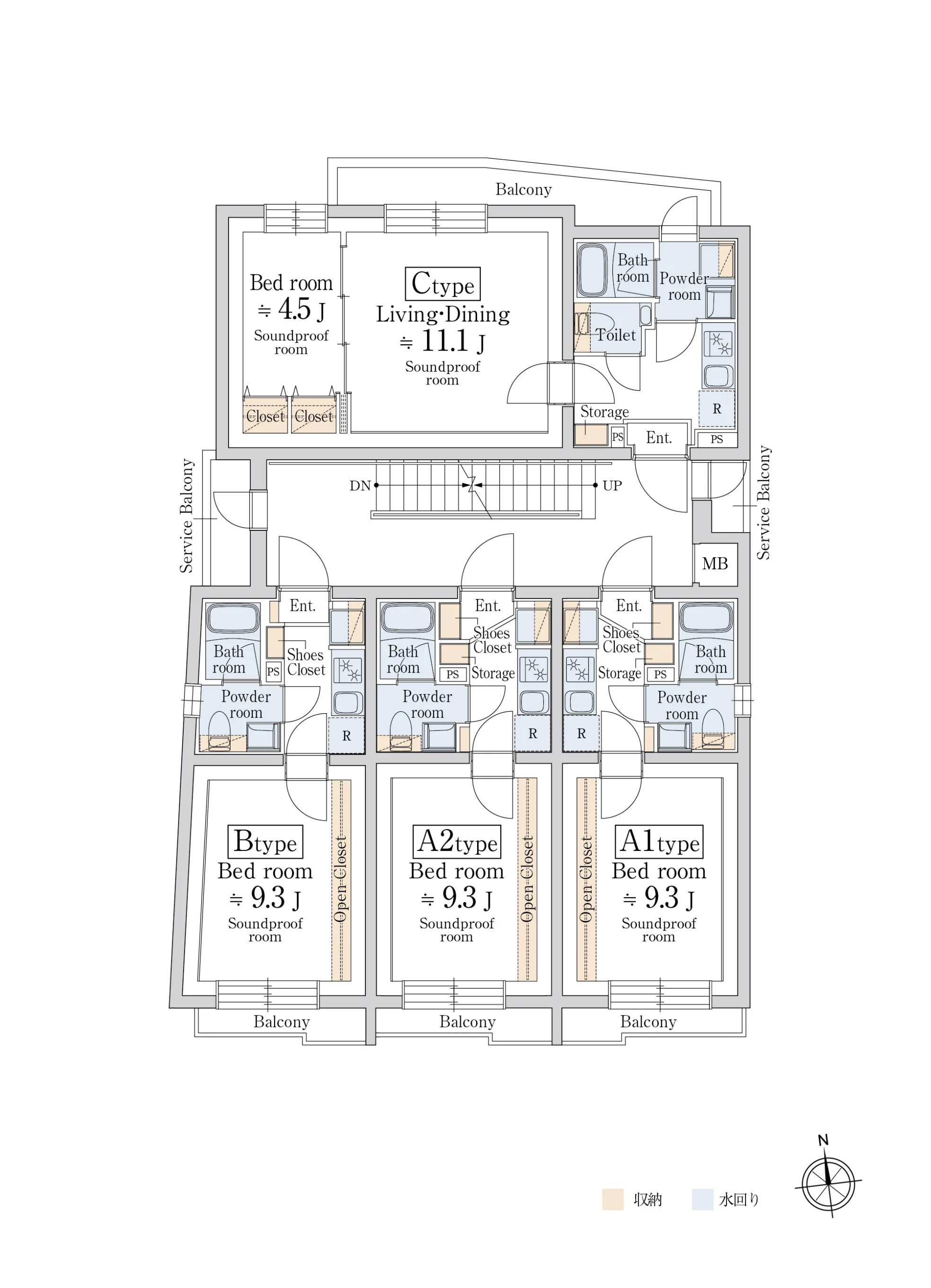
- 間取り
- 1Kタイプ(25.03~25.33㎡)×9戸、1LDKタイプ(40.58㎡)×3戸
- 防音構造
- 全戸三重防音構造
- 防音性能目標値
- 100dB(500Hz)
平面図
GROUND PLAN
アクセス
ACCESS
小田急線 下北沢駅より徒歩12分
京王井の頭線 池ノ上駅より徒歩11分
物件情報
PROPERTY INFORMATION
- 所在地
- 東京都世田谷区代沢3丁目
- 用途地域
- 第一種中高層住居専用地域
- 敷地面積
- 245.10㎡
- 建ぺい率
- 50%
- 容積率
- 150%
- 延床面積
- 414.15㎡
- 築年月
- 2025年2月
- 構造・階数
- 鉄筋コンクリート造・3階建
- 間取り
- 1Kタイプ(25.03~25.33㎡)×9戸、1LDKタイプ(40.58㎡)×3戸
- 防音構造
- 全戸三重防音構造
- 防音性能目標値
- 100dB(500Hz)
その他の物件
OTHER PROPERTIES
販売中物件はこちら